Main image
SSTC
£499,995

Wynyard Woods, Wynyard, TS22

Wynyard, Billingham, TS22 5UP
Property Type - Detached
Bed 5
Bath 3
AnthonyJones_RS2548
Save
love
Share
upload
Property
Property
Property
Property
Property
Property
Property
Property
Property
Property
Property
Property

Property Details

The Mackintosh Garden Room is a 5-bedroom detached family home offering 2,002 square feet of living space and an integral double garage.

The downstairs space comprises a light and spacious open plan kitchen and dining area to the back of the home, which leads into the statement garden room, offering floor to ceiling cathedral style windows and French doors leading out into the garden. This large, open space featuring a designer kitchen, quality integrated appliances and a breakfast bar provides the perfect flexible space to fit around your lifestyle.

To the front of the home is a separate, generously-sized living room with statement windows, allowing light to flood in. Downstairs also features a utility room with direct access from the kitchen, double garage and outside, plus a WC and ample storage.

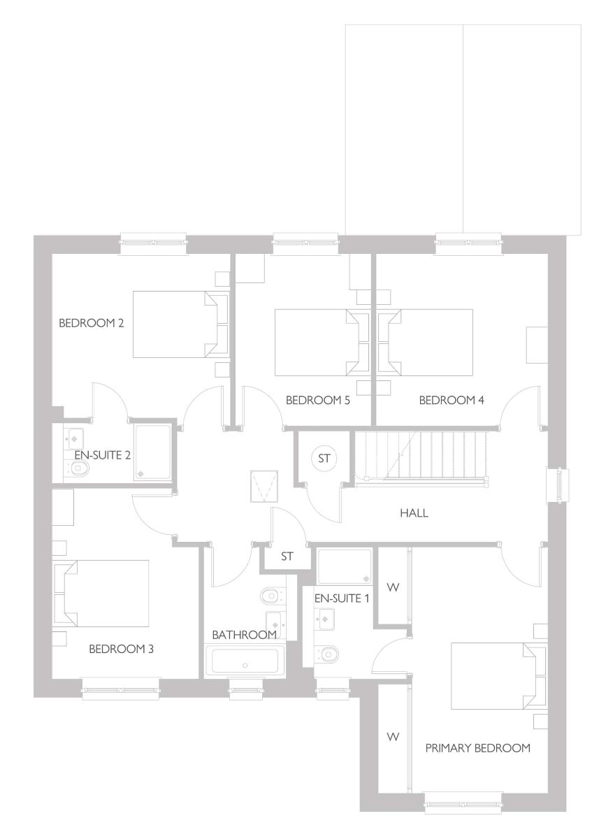
Upstairs are five double bedrooms, the primary bedroom to the front of the home offers double fitted wardrobes and en-suite with double shower, and bedroom 2 also features private en-suite facilities. This floor also features a family-sized bathroom

Room Dimensions

GROUND FLOOR
Lounge - 4851 x 3513 millimetre
Kitchen - 3529 x 3385 millimetre
Dining - 5050 x 3529 millimetre
Garden Room - 3933 x 3513 millimetre
Utility - 3542 x 1727 millimetre
WC - 2215 x 1313 millimetre

FIRST FLOOR
Primary Bedroom - 5098 x 3513 millimetre
En-suite 1 - 2735 x 2179 millimetre
Bedroom 2 - 3685 x 3398 millimetre
En-suite 2 - 2482 x 1250 millimetre
Bedroom 3 - 3950 x 3032 millimetre
Bedroom 4 - 3563 x 3555 millimetre
Bedroom 5 - 3563 x 2821 millimetre
Bathroom - 2735 x 1932 millimetre

Council Tax Band: TBC
Tenure: Freehold
Parking options: Driveway, Garage, Off Street
Garden details: Enclosed Garden, Rear Garden, Terrace

Property Details

The Mackintosh Garden Room is a 5-bedroom detached family home offering 2,002 square feet of living space and an integral double garage.

The downstairs space comprises a light and spacious open plan kitchen and dining area to the back of the home, which leads into the statement garden room, offering floor to ceiling cathedral style windows and French doors leading out into the garden. This large, open space featuring a designer kitchen, quality integrated appliances and a breakfast bar provides the perfect flexible space to fit around your lifestyle.

To the front of the home is a separate, generously-sized living room with statement windows, allowing light to flood in. Downstairs also features a utility room with direct access from the kitchen, double garage and outside, plus a WC and ample storage.

Upstairs are five double bedrooms, the primary bedroom to the front of the home offers double fitted wardrobes and en-suite with double shower, and bedroom 2 also features private en-suite facilities. This floor also features a family-sized bathroom

Room Dimensions

GROUND FLOOR
Lounge - 4851 x 3513 millimetre
Kitchen - 3529 x 3385 millimetre
Dining - 5050 x 3529 millimetre
Garden Room - 3933 x 3513 millimetre
Utility - 3542 x 1727 millimetre
WC - 2215 x 1313 millimetre

FIRST FLOOR
Primary Bedroom - 5098 x 3513 millimetre
En-suite 1 - 2735 x 2179 millimetre
Bedroom 2 - 3685 x 3398 millimetre
En-suite 2 - 2482 x 1250 millimetre
Bedroom 3 - 3950 x 3032 millimetre
Bedroom 4 - 3563 x 3555 millimetre
Bedroom 5 - 3563 x 2821 millimetre
Bathroom - 2735 x 1932 millimetre

Council Tax Band: TBC
Tenure: Freehold
Parking options: Driveway, Garage, Off Street
Garden details: Enclosed Garden, Rear Garden, Terrace

Property Features

Spacious designer kitchen by Symphony including integrated appliances by AEG and Zanussi
Formal lounge with floor to ceiling feature windows flood the home with light
WAS £529,995 NOW £499,995 - SAVE £30,000!
Reserve Now and Make your Home your own with £20,000 to spend on extras from us!
Large Southwest facing rear garden
Integral double garage with direct access from the utility room
Primary bedroom with double set of fitted wardrobes and en-suite
Second bedroom features en-suite
Statement garden room with cathedral style windows and vaulted ceiling

Enquire About This Property

Get in contact with us about this property today and one of our team will be in touch

Anthony Jones Properties's photo

This property is marketed by

Anthony Jones Properties

Similar Properties

Featured Properties