Main image
Offers over £535,000

Tulip Close, Wynyard, TS22

Tulip Close, Billingham, TS22 5UU
Property Type - Detached
Bed 5
Bath 4
AnthonyJones_RS2537
Save
love
Share
upload
Property
Property
Property
Property
Property
Property
Property
Property
Property
Property
Property
Property
Property
Property
Property
Property
Property
Property
Property
Property

Property Details

Set on a generous, private corner plot in one of Wynyard's most peaceful cul-de-sacs, Tulip Close is a substantial 5 bedroom home that combines scale, finish and setting in equal measure. Built by Taylor Wimpey and significantly upgraded by the current owners, it offers over 2,000 sq ft of flexible, family-oriented space - designed to work as well on a busy Monday morning as it does for weekend entertaining.

The layout is confidently configured from the outset. A wide hallway sets the tone, leading to a large rear lounge with French doors opening directly onto the south-facing garden. Light, calm and well-proportioned, it's a space that adap

Property Details

Set on a generous, private corner plot in one of Wynyard's most peaceful cul-de-sacs, Tulip Close is a substantial 5 bedroom home that combines scale, finish and setting in equal measure. Built by Taylor Wimpey and significantly upgraded by the current owners, it offers over 2,000 sq ft of flexible, family-oriented space - designed to work as well on a busy Monday morning as it does for weekend entertaining.

The layout is confidently configured from the outset. A wide hallway sets the tone, leading to a large rear lounge with French doors opening directly onto the south-facing garden. Light, calm and well-proportioned, it's a space that adapts with the seasons. At the front, a formal dining room and dedicated study provide additional flexibility, ideal for hybrid working, multi-generational living or quiet evenings away from the main hub.

The kitchen/dining space is at the rear of the house, connecting directly to the garden and patio. With quartz worktops, integrated appliances and room to dine, relax and host, this is the part of the home that truly elevates day-to-day living. A separate utility room keeps clutter out of sight, while ambient lighting and crisp finishes complete the space with purpose and polish.

Upstairs, the principal bedroom enjoys open views and a private en-suite, while Bedroom 2 also benefits from its own en-suite, perfect for older children, guests or live-in relatives. Three further double bedrooms share a well-appointed family bathroom, all finished with a consistent level of quality throughout.

Outside, the landscaped rear garden is private, south-facing and thoughtfully designed. A full-width patio, raised borders and architectural lighting create distinct zones for entertaining, play and downtime, while the addition of a fully insulated garden room-complete with power, lighting and bi-fold doors - offers year-round usability as a gym, office or retreat.

To the front, the wide driveway and detached double garage provide parking for multiple vehicles and reinforce the sense of space throughout. With no passing traffic and a strong local community, the setting offers all the benefits of Wynyard's wider lifestyle - woodland walks, local amenities, security and easy access - within a quieter, more private location.

For buyers seeking a high-calibre home in a mature and established setting, Tulip Close offers a rare opportunity to secure exactly that; finished, functional and ready to enjoy.

CALL NOW TO VIEW

Council Tax Band: G (Hartlepool Council)
Tenure: Freehold
Parking options: Driveway, Garage, Off Street
Garden details: Enclosed Garden, Front Garden, Private Garden, Rear Garden
Electricity supply: Mains
Heating: Gas Mains
Water supply: Mains
Sewerage: Mains
Accessibility measures: Wheelchair accessible

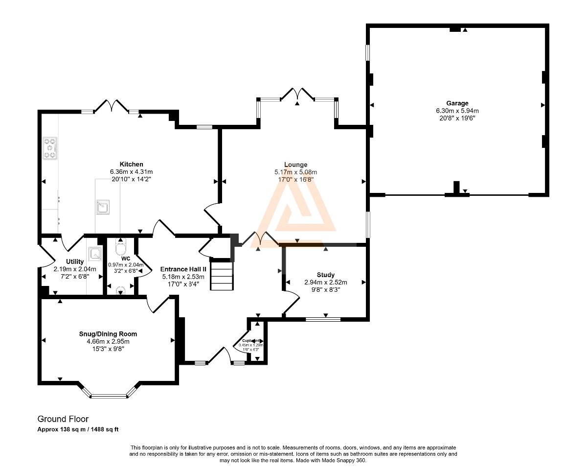
GROUND FLOOR

Entrance hall
Door to front,
Double glazed opaque windows to front,
Radiator,
Ceramic tiled flooring,
Inset spotlights,
Understairs cupboard,
Cloak cupboard with fuse box,
Smoke alarm,
Alarm (untested),

WC
WC,
Wash hand basin with mixer tap,
Part tiled,
Heated towel radiator,
Ceramic tiled flooring,
Inset spotlights,
Extractor fan,

Study
Double glazed window to front,
Radiator,
Ceramic tiled flooring,

Lounge
Double glazed window to side,
Double glazed patio doors to rear garden,
Radiator,
TV point,
Carpet flooring,
Smoke alarm,
Inset spotlights,

Dining Room
Double glazed window to front,
Radiator,
Carpet flooring,

Kitchen
Double glazed window to rear,
Double glazed French doors to rear garden,
Fitted kitchen with wall and base cupboards,
1.5 bowl stainless steel sink with mixer tap,
Water softener system,
Granite worktops,
Double oven,
5 ring gas hob,
Cooker hood,
Extractor fan,
Integrated fridge/freezer,
Integrated dishwasher,
Radiator,
Ceramic tiled flooring,
Inset spotlights,

Utility
Double glazed opaque half glazed door to side,
Wall and base cupboards,
1 bowl stainless steel sink with mixer tap,
Central heating boiler,
Integrated washing machine,
Granite worktops,
Radiator,
Ceramic tiled flooring,
Inset spotlights,
Extractor fan,
Smoke alarm,

FIRST FLOOR:

Landing
Stairs from ground to first floor,
Double glazed window to front,
Loft access,
Radiator,
Carpet flooring,
Smoke alarm,

Bedroom 1
Double glazed window to side and rear,
Fitted wardrobes,
Radiator,
TV point,
Inset spotlights,
Carpet flooring,

En-suite
Double glazed opaque window to side,
Wash hand basin with mixer tap,
WC,
Shower cubicle with rainfall shower and handheld shower attachment,
Fully tiled,
Inset spotlights,
Ceramic tiled flooring,
Shaver point,
Heated towel rail,
Extractor fan,

Bedroom 2
Double glazed window to front,
Fitted wardrobes,
Radiator,
TV point,
Inset spotlights,
Carpet flooring,

En-Suite 2
Wash hand basin with mixer tap,
WC,
Shower cubicle with rainfall shower and handheld shower attachment,
Fully tiled,
Inset spotlights,
Ceramic tiled flooring,
Shaver point,
Heated towel rail,
Extractor fan,

Bedroom 3
Double glazed windows to front,
Fitted wardrobes,
Radiator,
TV point,
Carpet flooring,

Bedroom 4
Double glazed window to rear,,
Fitted wardrobes,
Radiator,
Carpet flooring,

Bedroom 5
Double glazed window to rear,
Fitted wardrobes,
Radiator,
Carpet flooring,

Bathroom
Double glazed opaque window to rear,
Wash hand basin with mixer tap,
WC,
Bath with mixer taps and handheld mixer shower attachment,
Fully tiled,
Inset spotlights,
Ceramic tiled flooring,
Shaver point,
Heated towel rail,
Extractor fan,

OUTSIDE

Garage
Double garage,
Up and over doors,
Power,
Light,

Front Garden
Lawn,
Outside lighting,
Hedge to border,
Tarmac driveway,

Rear Garden
South facing,
Lawn,
Patio,
Outside tap,
Fencing and shrubs to borders,
Outside lighting,
2 outside double sockets,

Garden Room
Double glazed bifold doors to front,
Power,
TV point,
Storage room,

Property Features

Highly sought after location
South facing garden
Beautiful family home
Detached double garage
5 bedrooms
Garden room
Chain free

Enquire About This Property

Get in contact with us about this property today and one of our team will be in touch

Anthony Jones Properties's photo

This property is marketed by

Anthony Jones Properties

Similar Properties

Featured Properties

111