Main image
£1,000,000

Dibdale Road, Neasham, DL2

9 Dibdale Road, Neasham, DL2 1PF
Property Type - Detached
Bed 5
Bath 5
AnthonyJones_RS2423
Save
love
Share
upload
Property
Property
Property
Property
Property
Property
Property
Property
Property
Property
Property
Property
Property
Property
Property
Property
Property
Property
Property
Property
Property
Property
Property

Property Details

This exceptional home is a rare architectural statement: a contemporary residence of over 3,500 sq. ft., set across three dramatic floors with panoramic countryside views, featuring five bedrooms, five bathrooms, and reception spaces designed to accommodate both family life and entertaining. With a superb south-facing plot, expansive parking, and a garage capable of accommodating several cars, it offers a lifestyle that is both practical and aspirational.

On the ground floor, the home makes an immediate impression. The entrance hall, finished with underfloor heating and a floating staircase, creates a bold sense of arrival. From here, the pr

Property Details

This exceptional home is a rare architectural statement: a contemporary residence of over 3,500 sq. ft., set across three dramatic floors with panoramic countryside views, featuring five bedrooms, five bathrooms, and reception spaces designed to accommodate both family life and entertaining. With a superb south-facing plot, expansive parking, and a garage capable of accommodating several cars, it offers a lifestyle that is both practical and aspirational.

On the ground floor, the home makes an immediate impression. The entrance hall, finished with underfloor heating and a floating staircase, creates a bold sense of arrival. From here, the principal living accommodation extends to the rear: a spectacular open-plan kitchen and dining area featuring a central island, granite worktops, integrated appliances, and bi-fold doors that open onto a balcony and sun terrace. The adjoining dining room and living room also enjoy direct balcony access, ensuring every space is connected to the views. A private office, fitted with storage and Cat6 cabling, allows for seamless home working, while a utility room, cloakroom and store room keep everyday life neatly organised. Two bedrooms on this level - one en-suite, the other with its own shower room - offer flexible options for guests, multigenerational living or independent teenagers.

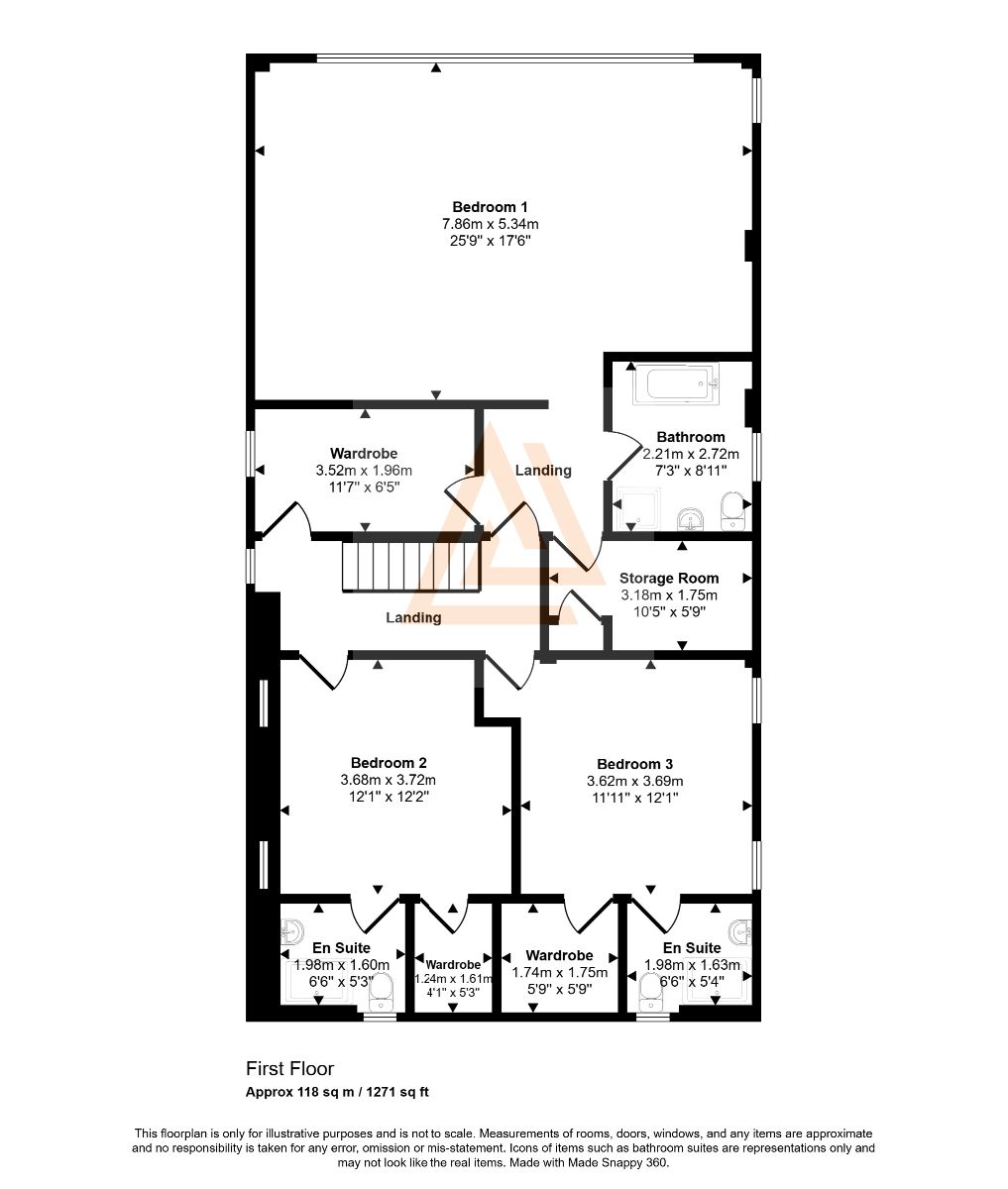
The first floor is home to three additional bedrooms, each with a walk-in wardrobe and a beautifully appointed en-suite. The principal suite is the definition of luxury, with twin wardrobes, a private dressing room and a bathroom complete with freestanding tub, walk-in rainfall shower, and dual vanity units. Large windows and access to balconies ensure every room is filled with natural light.

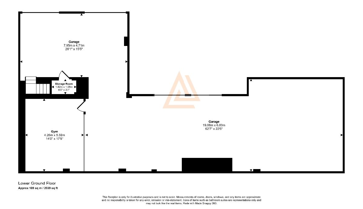
The lower ground floor is dedicated to lifestyle. A vast multi-car garage provides secure, convenient parking on a scale rarely found, while a fully glazed gym space ensures wellness can be part of daily routine without leaving the property.

Outside, the property sits behind electric gates with CCTV, a sweeping block-paved driveway, and landscaped gardens. The rear is south-facing, with lawns, wraparound terrace and a summer house, all perfectly orientated for entertaining or relaxation against an uninterrupted countryside backdrop.

Neasham itself is a highly regarded riverside village offering peace, walks along the Tees, and a strong sense of community, yet is only minutes from Darlington town centre. Families will value proximity to excellent local schools, including Polam Hall and Hurworth, while leisure options at Rockliffe Hall and Wynyard Golf Club add to the appeal. For commuters, Teesside Airport is under three miles away, with the A1(M), A19 and East Coast Mainline providing swift connections to Newcastle, Durham, York, Edinburgh and London.

For the discerning buyer seeking a home that combines architectural ambition with everyday practicality, The View is a rare opportunity to secure one of the region's most distinctive and desirable residences.

Council Tax Band: G (Darlington Borough Council)
Tenure: Freehold
Parking options: Driveway, Garage, Off Street, On Street, Underground
Garden details: Enclosed Garden, Front Garden, Private Garden, Rear Garden, Terrace
Electricity supply: Mains
Heating: Gas Mains
Water supply: Mains
Sewerage: Mains
Broadband: Cable

Entrance hall
Double composite doors to front,
Ceramic floors with underfloor heating,
Alarm control,
Inset spotlights

Cloakroom
Ceramic floors with underfloor heating,
Inset spotlights,
Wash hand basin,
Opaque window to front,
Extractor fan,

Kitchen/Dining Room
Ceramic floors with underfloor heating,
Windows to front,
Bi fold doors to rear and access to balcony,
Inset spotlights,
Central kitchen island,
Wine, chiller,
Integrated dishwasher,
1.5 bowl stainless steel insect sink,
Mixer tap,
Oven,
Extractor hood,
Induction hob,
Microwave and eyelevel oven,
Granite worktops,

Dining Room
Ceramic floors with underfloor heating,
Double doors to hallway,
Bi Fold doors to rear balcony,
Inset spotlights,

Utility
Ceramic floors with underfloor heating,
Insett spotlights,
1.5 bowl stainless steel inset sink,
Windows to front,
Under counter plumbing for washing machine,
Granite worktops,
Storage cupboards containing hot water cylinder,

Office 1
Ceramic floors with underfloor heating,
Inset spotlights,
Windows to front,
Underfloor heating control,
Integrated storage cupboards,
Communications cabinet housing all Cat6 cabling, TV distribution and CCTV

Store Room
Ceramic flooring,
Combination boiler,
Consumer unit ,
Inset spotlights,

Living room
Ceramic flooring with underfloor heating,
Inset spotlights,
Bi fold doors to rear balcony,
Stairs to first floor,
Underfloor heating control
Floating staircase to first floor,

Bedroom 1
Ceramic flooring with underfloor heating,
Bi fold doors to rear balcony,
Inset spotlights,

Shower Room
Ceramic floor with underfloor heating,
Opaque window to side,
Walk in shower with rainfall showerhead,
Handheld shower attachment,
Inset spotlights,
Column radiator,
Vanity unit,
WC,
Part tiled,
Extractor fan

Bedroom 2
Ceramic floor with underfloor heating,
Inset spotlights,
Windows to side,
Walk in wardrobe

En-suite
Ceramic and flooring with underfloor heating,
Walk-in shower cubicle with rainfall shower head
Handheld shower attachment,
WC,
Vanity unit
Qpaque window to side,
Insert spotlights,
Extractor fan

FIRST FLOOR:

Landing
Floating stair case from living room,
Ceramic floors,
Central heating radiator,
Window to side,
Inset spotlights,

Bedroom 3
Carpet flooring,
Central heating radiators,
Windows to side,
Walk in wardrobe,
Inset spotlights,

En-Suite 2
Ceramic and flooring with underfloor heating,
Walk-in shower cubicle with rainfall shower head
Handheld shower attachment,
WC,
Vanity unit
Qpaque window to side,
Insert spotlights,
Extractor fan

Bedroom 4
Carpet flooring,
Central heating radiators,
Windows to side,
Walk in wardrobe,
Inset spotlights,

En-Suite 3
Ceramic and flooring with underfloor heating,
Walk-in shower cubicle with rainfall shower head
Handheld shower attachment,
WC,
Vanity unit
Qpaque window to side,
Insert spotlights,
Extractor fan
EditView

Bedroom 5
Ceramic and part carpet flooring,
Insect spotlights,
Windows to side and rear,
Central heating radiator,
Twin walk in wardrobes

Walk-In Wardrobe
Ceramic flooring,
Window to side,
Inset spotlights,
Central heating radiator

En-suite 4
Ceramic flooring,
Column radiator,
Shower cubicle with rainfall shower and hand held shower attachment,
Fantasy unit,
WC,
Opaque window to side,
Freestanding bath with shower attachment,
Extractor fan,

Garage
Stairs from Hall,
Remote control electric roller shutter doors,
Concrete flooring,
Expansive parking for several cars,
Power,
Water,

Gym
Floor-to-ceiling glazed partitions,
Carpet flooring
Glazed access door
Strip lights,
Power

OUTSIDE

Front Garden
Electric gates to front,
Mature borders,
Block paved driveway,
Turf and evergreen borders,
CCTV

Summer House
Freestanding timber construction,
Windows and door to front,
Inset spotlights,
Power,

Rear Garden
Expensive parking for several cars,
West facing garden,
Lawn,
Hedge and walled borders,
Security gates to side,
Outside lighting,
CCTV,
Outside tap

Property Features

Exceptional quality of finish
Expansive private parking
South facing garden
Balcony and sun terrace
Architecturally designed
Stunning views over open countryside
Underfloor heating on ground floor
Multi car garage

Enquire About This Property

Get in contact with us about this property today and one of our team will be in touch

Anthony Jones Properties's photo

This property is marketed by

Anthony Jones Properties

Similar Properties

Featured Properties